C4D&E

ellie.png
trans.png

Center for Design & Energy - Filson & Rohrbacher / Center for Applied Energy Research

 

Transdisciplinary Research is the exploration of a problem that integrates the perspectives of multiple disciplines in order to connect new knowledge.

Transdisciplinary interaction encourages equality and discourages hierarchy, builds upon the transmission of information, and stimulates discovery developed from new connections. A transdisciplinary collaboration varies from interdisciplinary and multidisciplinary practices, in that it focuses both within and beyond discipline boundaries with the possibility of new perspectives 

Transdisciplinary problem solving creates a holistic solution, based on a variety of disciplines.

A transdisciplinary project evolves throughout its life cycle. A project is not always equal with a lack of hierarchy. Projects at the C4D+E will transform from transdisciplinary to multidisciplinary and at times return to a interdisciplinary project before its completion. Projects continuously change depending on the number of disciplines involved as well as the role each discipline takes. 

A project is transdisciplinary when each discipline working within the project has an equal role. Once that equality shifts, the project then transforms to multidisciplinary. Transdisciplinary projects vary upon the number of disciplines involved & are represented by the related shape. The shapes adapt and change based on the exchange of hierarchy.

Project under University of Kentucky Center for Applied Energy Research + Filson & Rohrbacher

Design by Gary Rohrbacher & Anne Filson 

Deliverables: in collaboration with Sydney Kidd & Christoph Schönlein. Concept research and development, drawings, & graphic design. 

program.png

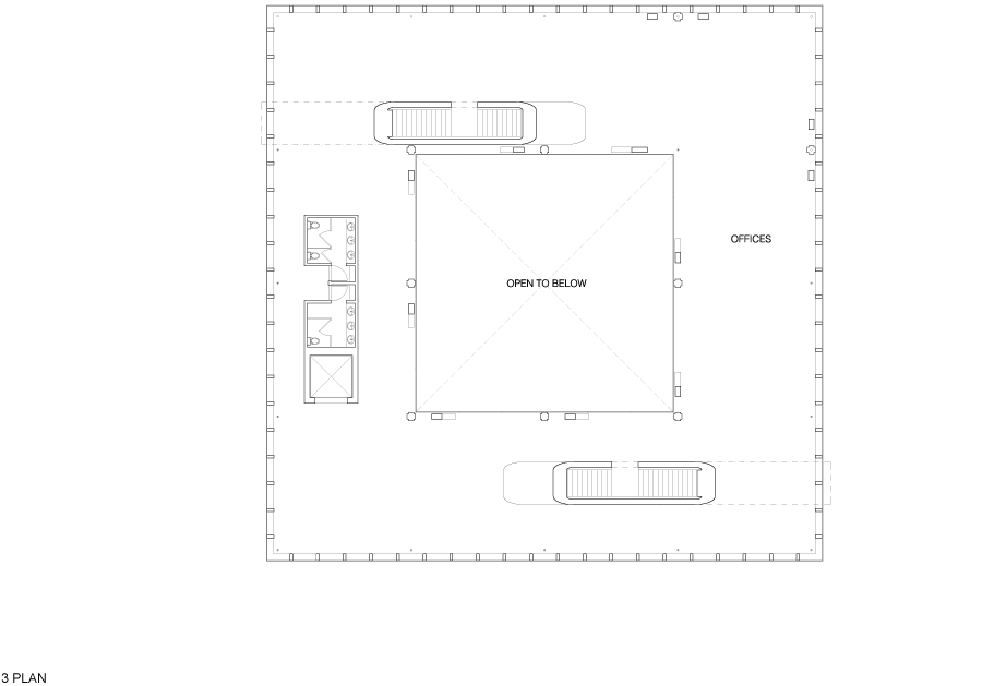
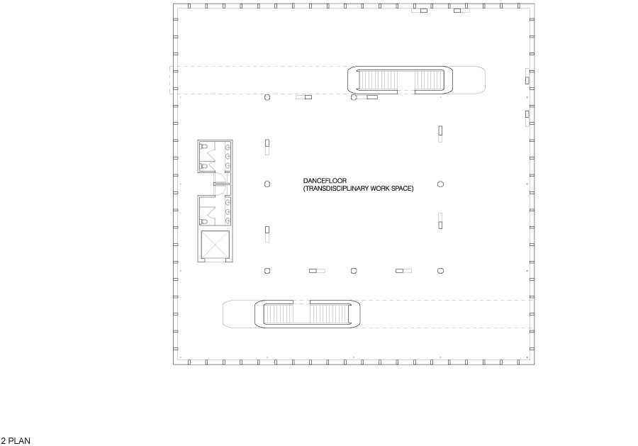
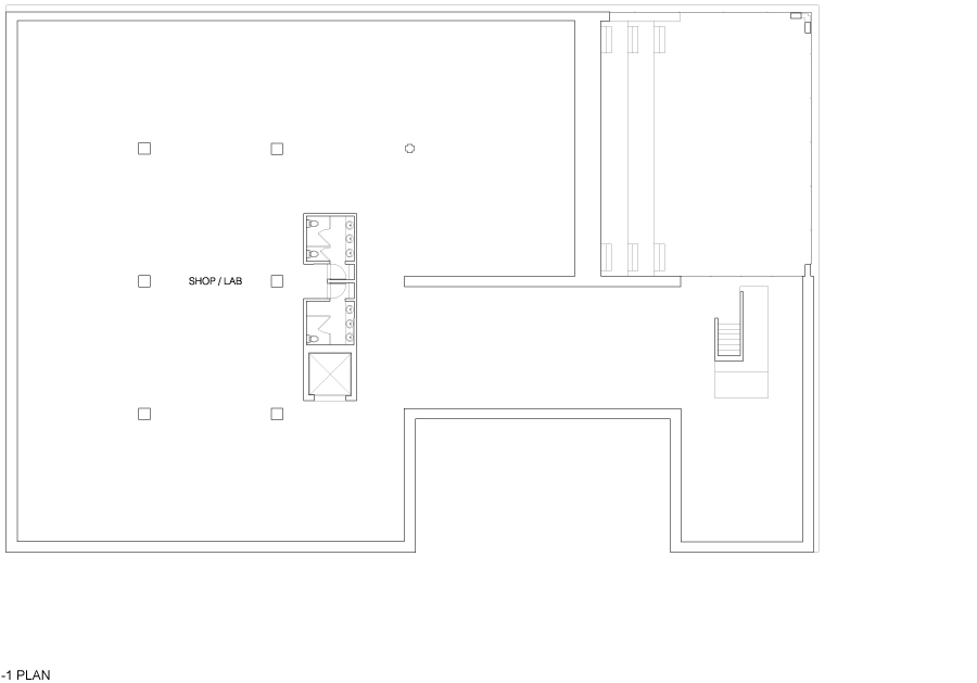
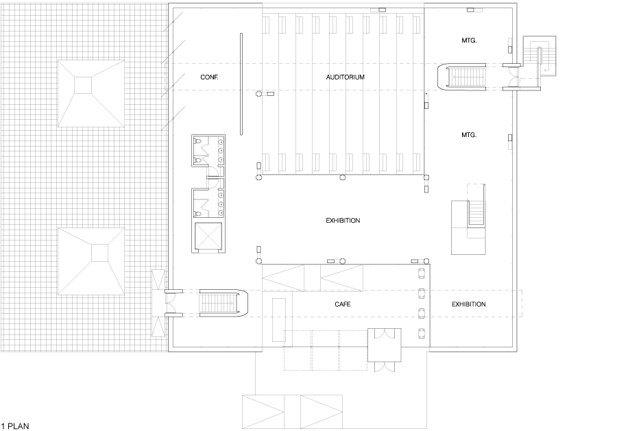
A center for transdisciplinary work needs flexible and open spaces which encourage interaction.  

In order to balance anticipated needs and provisional spaces, we developed a framework for programmatic conditions: “Solid”, “Liquid” and “Gas”. The Solid elements accommodate fixed program within spaces that possess prescriptive or pre-defined constraints. The Liquid spaces have some constraints, but still accommodate spontaneous use. The Gaseous spaces are the least prescriptive and most open to the activities we cannot anticipate. This space is free to be reinterpreted over time and open for information to be passed and shared with no limitations.     

By organizing program based on the type of interaction within each program, we’ve produced architectural accommodation for specific needs, for interpretation, and for overlap between the two. This framework allows for more efficient use of the building as well as spatial relationships that support a wide variety of interactions.   

elevations.png
sections_1 (1).png
Previous
Previous

VIDEO

Next
Next

EDUCATIONAL WOKRSHOP